Grundriss & Fakten
Erdgeschoss
Wohnung B1
Zimmer 3½
Nettowohnfläche 89.5 m²
Terrasse 26.5 m²
Keller B1 9.5 m²
verkauft
Wohnung B2
Zimmer 2½
Nettowohnfläche 66.5 m²
Terasse 15.5 m²
Keller B2 7 m²
verkauft
1. Obergeschoss
Wohnung B3
Zimmer 3½
Nettowohnfläche 91.5 m²
Terrasse 21 m²
Keller B1 7 m²
verkauft
Wohnung B4
Zimmer 2½
Nettowohnfläche 67.5 m²
Terrasse 12.5 m²
Keller B1 7 m²
verkauft
Dachgeschoss
Wohnung B5
Zimmer 4½
Nettowohnfläche 156.5 m²
Balkon / Terrasse 34 m²
Keller B5 13 m²
verkauft
Einstellhalle
Verkaufspreis pro Einstellhallenparkplatz CHF 40'000.–
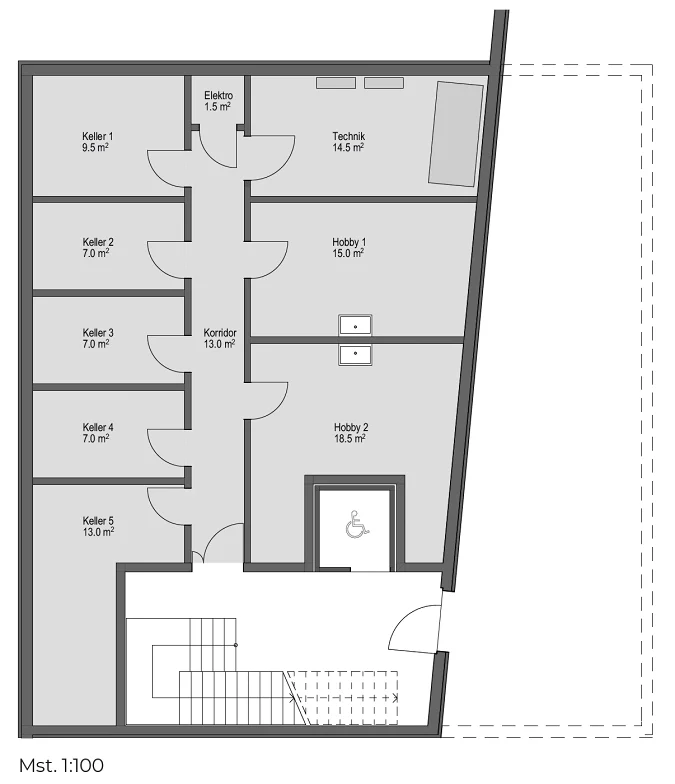
Untergeschoss
Verkaufspreis Hobbyraum ca. 25 m2: Preis auf Anfrage
Moderner Ausbaustandard
Der hochwertige Innenausbau umfasst edlen Parkett- oder Plattenbelag sowie eine komfortable Fussbodenheizung. Die stilvoll gestalteten Wohn- und Küchenmöbel bieten ein gehobenes Niveau und überzeugen durch ergonomische Proportionen. Grosszügig verglaste, seeseitige Fensterfronten sorgen für lichtdurchflutete Räume und eine beeindruckende Aussicht. Weitere Highlights sind eine moderne Schliessanlage mit Sonnerie, eine effiziente Luftwärmepumpe, ein Aufzug sowie eine geräumige Einstellhalle und Kellerräume.
